护笼钢爬梯


护笼钢爬梯
护笼钢爬梯是在钢直梯的基础上加上护笼和女儿墙弯头,表面为热镀锌,梯臂是用60*10的扁钢绝非角钢,现在好的客户以为梯臂国标应该是角钢那是不对,角钢也是可以用来做梯臂,上屋面钢直梯是永久性安装在建筑物外墙上与水平面成90
护笼钢爬梯基础参数
护笼钢爬梯外形尺寸:宽度都是600mm长度按客户要求,如果太长要加装平台,平台加装也要看客户需求 护笼钢爬梯表面处理:一般都是热镀锌为国标做法,也可喷漆,冷镀锌,不锈钢选择抛光 护笼钢爬梯宽度:默认600mm也可定制 护笼钢爬梯弯头:有AC和AB 护笼钢爬梯护笼:扁钢护笼为6mm厚用料 护笼钢爬梯材质:Q235B铁和不锈钢201,304,还有铝合金
护笼钢爬梯
护笼钢爬梯选择
| 代号 | 内容名称 | 适用范围 |
|---|---|---|
| WTl | 单段梯无护笼钢直梯 | 屋面高度< |
| WT2 | 单段梯有护笼钢直梯 | 7m |
| WT3 | 多段梯有护笼钢直梯 | 屋面高度》 |
| WT4 | 梯间平台上屋面钢直梯 | 从梯问平台到屋面的高度为2.8-5.8米 |
| WT5 | 天窗端壁上屋面钢直梯 | 天窗架高度为 |
护笼钢爬梯材料与制造安装
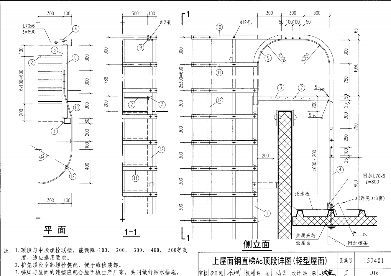
上屋百钢直梯由梯梁、踏棍、支撑、护笼及梯间平台、栏杆 等构成土墨西钢直梯按建筑物檐口构造分为三种安装类型,即 挑檐檐\(a 1200mm型);高度小于等于 600mm 女儿墙( 型);高度 600- 女儿墙( 型) 本图集专为金属夹芯板屋面提供了上屋面钢直梯顶段的 做法。其中包括用于纵向屋面带挑檐檐口的做法(见Dll 和两种用于山墙与金属夹芯板屋面交接处设置钢直梯时上屋面顶段的构造做法(见页) D14 D16 以结合工程实际参照安装页)。其他压型金属板屋面可 钢直梯采用力学性能不低于 保证的钢材。焊接应符合《钢结构工程施工质量验收规范》GBQ235-B ,并具有碳含量合格 50205 2001 规定的要求 钢直梯的涂装要求热镀锌 上屋面钢直梯的支撑与主体结构的连接由项目设计解决
护笼钢爬梯设计要点
上屋面钢直梯分为单段梯和多段梯两种。当屋面高度小 Om时,可采用单段梯;当屋面高度大于等于 用多段梯。多段梯需设梯问平台,平台之间的垂直间距为恤,梯段水平交错布置lOm 时,应采 本图集为多段梯提供了两种宽度的梯间平台做法,一种是 1800mm宽,人从下边梯段上来后穿过平台,称之为下上式; 另一种是1200mm 宽,下边梯段位于平台的侧面,称之为侧上 式。梯问平台的深度也有两种做法,即 1500mm1500mm 1200mmo 适用于檐口为挑檐;深度 墙。设计时可以酌情选用,在上屋面钢直梯代号中不体现。1200mm 适用于屋檐为女儿 单段梯的高度大于等于 梯段下端基准面的距离为7m 时,应设置护笼。护笼底部距 3000mmo 当下端基准面为梯问平台时(即从楼层室内开门到室外 挑台及设有吊车的车间,从吊车梁的山墙端开门到室外挑台的),可以选用梯间平台上屋面钢直梯本图集适用于从低屋面上至高屋面的屋面检修钢直梯, 即下端基准面也可以是屋面。天窗端壁上屋面钢直梯也属于从低屋面上至高屋面的钢直梯钢直梯净宽为 一级踏棍距基准面小于等于600mm ;踏棍垂直间距小子等于 300mm ;第 450mm 在一般条件下,踏棍采用直径为 60mm lOmm20mm 的因钢,梯梁采用 扁钢;潮湿或腐蚀条件下,踏棍采用直径为 的圆钢,梯梁采用25mm 60mm 12mm 的扁钢 护笼为圆形结构,直径为 1050mm800mmo 护笼顶部应高出屋面 ,并设置栏杆 上屋面钢直梯由上、中、下段组合构成,分段是为了方 便施工和编制材料表,在选用编号中不体现
护笼钢爬梯编号及选用方法
天窗端壁上屋面钢直梯: WT5 - 此例表示用于天窗架高度为3. 25 3. 直梯25m 的天窗端壁上屋面钢 上屋面钢直梯:WT 1a -6.6 WT上屋面钢直梯,1-单段梯无笼,2-单段梯无笼,3-多段梯有笼,4-梯间平台上屋面,5-天窗端壁上屋面,a-挑檐檐口,b-女儿墙≤600mm,c-女儿墙高>600-1200mm。 此例表示用于屋面高度为6. 屋面钢直梯60m ,有挑檐屋面的单段上
上屋面WT1 单段梯钢直梯选用图

上屋面WT2 单段梯钢直梯选用图

上屋面WT3 多段梯下上式钢直梯选用图

上屋面WT3 多段梯下上式钢直梯选用图

上屋面WT3 多段梯下上式钢直梯选用图

WT4梯间平台上屋面钢直梯选用图

WT5 天窗端壁上屋面钢直梯

上屋面钢直梯Aal员段详图(重型屋面)

上屋面钢直梯Aal员段详图(轻型屋面)

上屋面钢直梯Ab顶段详图(重型屋面)

上屋面钢直梯Ab 顶段详图(轻型屋面)

上屋面钢直梯Ab顶段详图(悬挑式)

上屋面钢直梯Acl页段详图(重型屋面)

上屋面钢直梯Ac 顶段详图(轻型屋面)

上屋面钢直梯及护笼详图

上屋面钢直梯B1 B3 中段详图

上屋面钢直梯C1 C3 下段详图

上屋面钢直梯梯间平台P1 P2 详图

上屋面钢直梯梯间平台P1 P2 抱柱钢架结构

上屋面阳 多段梯侧上式梯间平台示意图

上屋面钢直梯下上式及侧上式梯间平台

上屋面钢直梯材料表



